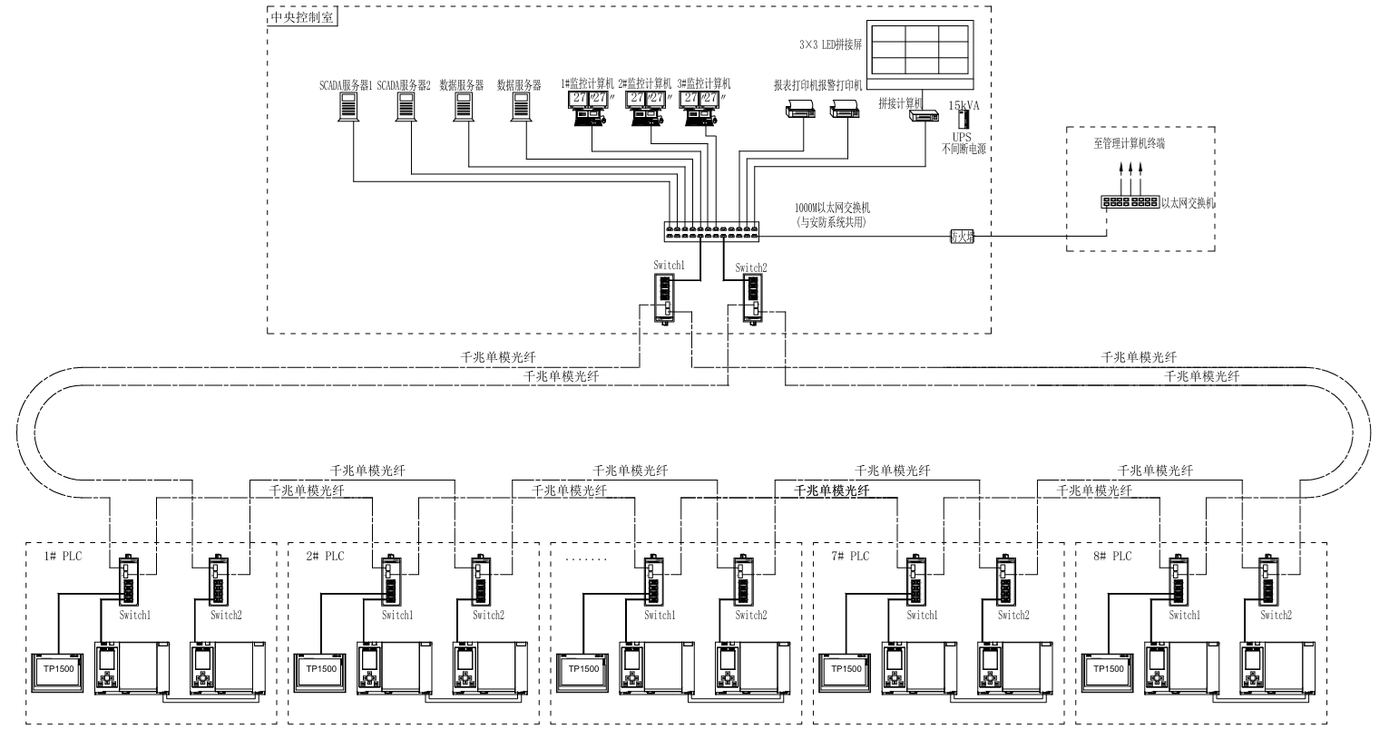
深圳市宝安江碧环保科技创新产业园工业废水集中处理厂自控系统采用了8套1517H冗余PLC,现场共配置了61套PLC柜,该自控系统采用双环网网络设置,共配置了2台IO服务器,2台数据库服务器,3台双显示器操作客户端,整个系统规模达到6万点。
宝安区是深圳的工业大区,聚集了大量电镀、线路板企业,其产生的废水成分复杂、污染物毒性强、处理难度高。江碧环境生态产业园定位为“电镀线路板产业绿色化发展基地”“节能环保、新材料等战略新兴产业拓展基地”,致力于建设具有深圳产业特色的国家级生态绿色发展示范产业园。园区整合了全区多家相关企业,实现集中布局、污水统一处理排放,旨在彻底解决区域重金属污染企业的环境治理难题。

深圳市宝安江碧环保科技创新产业园-工业废水集中处理厂位于沙井河与茅洲河交汇处,近期规模0.5万吨/天,远期规模3.5万吨/天,服务范围为园区内所有涉重企业的排放废水,是当地重点工程。针对园区企业产生的复杂工业废水特性,项目集成了物化、生化、AOPs(高级氧化)、电催化、BAF(曝气生物滤池)、MBR(膜生物反应器)、专用离子吸附、污泥干化、除臭等12项先进工艺处理系统,对24种不同的废水废液进行精细化分质处理。通过将每股废水的物化处理单元模块化设计,各工艺模块既能独立高效处理特定废水,又可互为备用,是国内立体工业废水处理种类最多、工艺处理系统最多的工程。
江碧工业废水集中处理厂根据其复杂工艺特点共使用了8套1517H冗余PLC,现场共配置了61套PLC柜,该系统采用为双环网网络设计,共配置了2台IO服务器,2台数据库服务器,3台双显示器操作客户端,整个系统规模达到6万点。我司负责了整个自控系统的网络规划,PLC编程和上位机组态工作。

针对江碧工业废水集中处理厂自控系统调试过程面临的工期紧,站点多,控制逻辑复杂等特点,我司采用模块化编程设计,标准化组态设计,圆满高效的完成了任务。


江碧工业废水集中处理厂的顺利投产,充分显示了我司具有承担复杂大项目的调试管理和技术实施能力。